Let’s work together
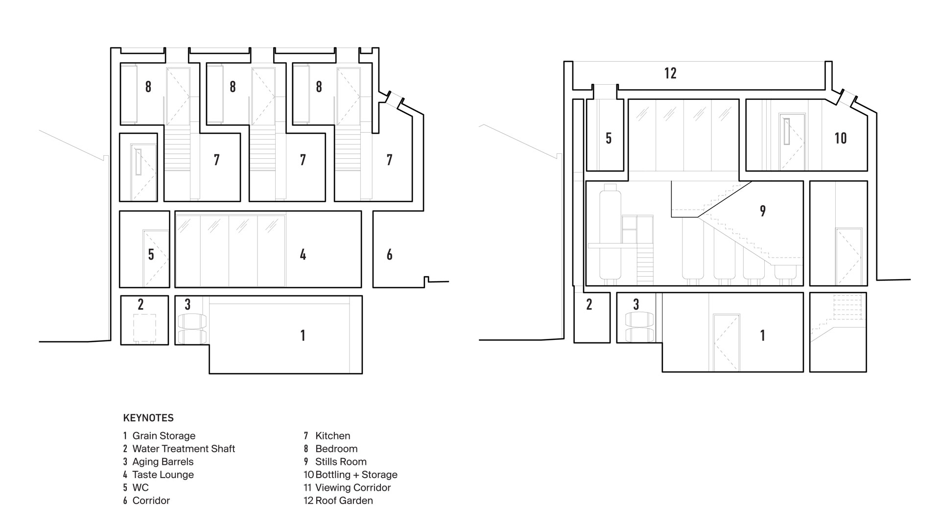
Located in the heart of Bowen Island’s historic Snug Cove, the Copper Spirit Distillery offers mixed-use design with both an artisanal gin distillery with tasting room and much needed residential rental units for islanders. This groundbreaking project is the first of its kind in Canada to combine industrial and residential use of this nature. With the aim of a sustainable production process, the distillery incorporates rain harvesting and heat recovery systems.

The unique layout of the three residential units provides livable spaces within a width of just 10ft while still harnessing natural light throughout. The tasting lounge offers an atrium and front patio which enhance the public infrastructure of Snug Cove.
img project
img project
img project
img project
img project
img project
img project
img project
img project
img project
img project
img project
img project
img project
img project
img project
img project

NEXT PROJECT

East 2nd Street Townhouses